Quien ha dicho que la elegencia está reñida con los metros.
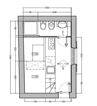
Este mini apartamento que no llega a 15 metros, no solo tiene todo lo que se necesita para vivir, sino que además destila estilo.
Enciende los altavoces y disfruta.

Con tan pocos metros, la imaginación lo es todo. Soluciones a medida hacen que este apartamento pueda tener todo en el espacio de una habitación,
La cocina escondida debajo del pequeño comedor, la cama pegada al comedor, el armario debajo de la cama….todo vale para que no falte ningún detalle.
Los colores claros, imprescindibles en tan pocos metros, junto con las formas depuradas del moviliario ayudan a dar sensacion de amplitud.
Los detalles morados en el cuadro, cojines y flores le dan calidez al espacio.









No Comments